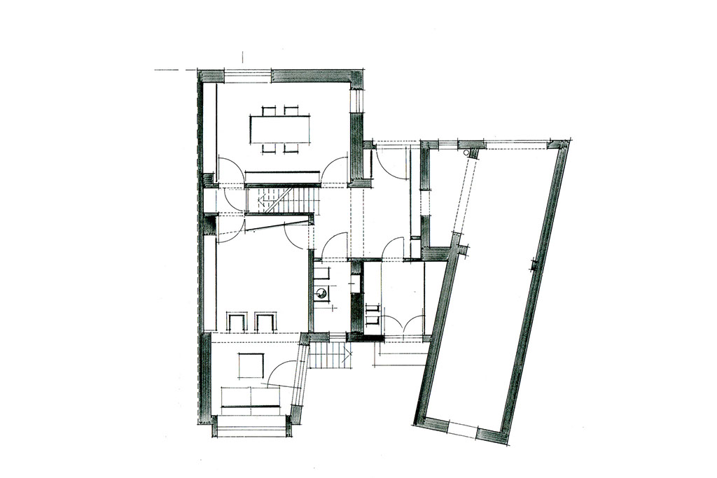
Durch Umbau der Etage im Erdgeschoss sind der Wohn- und Küchenbereich deutlich vergrößert. Das bislang ungünstig gelegene Duschbad wurde zum Eingangsbereich verlegt und die Küche zur Diele erweitert.
Siedlungshäuschen am Rande der Stadt
11 - 11
<
>
UMBAU 50er Jahre haus